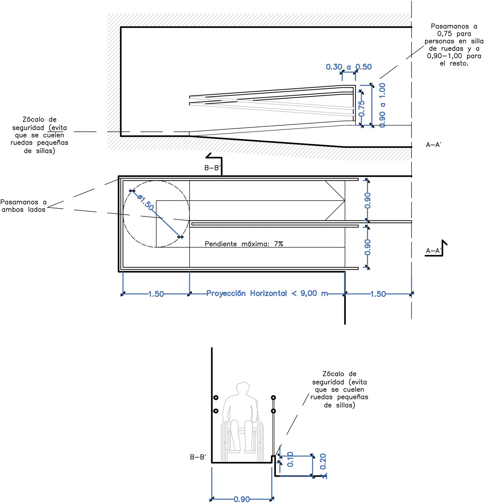
Tener una anchura mínima libre de paso de 1,80 m. Esta anchura se medirá entre paredes o elementos de protección, sin descontar el espacio ocupado por los pasamanos, siempre que estos no sobresalgan más de 12 cm de la pared o elemento de protección. La longitud máxima en proyección horizontal será de 9,00 m.. Según el Código Técnico de la Edificación de España (o CTE) la pendiente máxima para las rampas accesibles es del 10% en longitudes menores a 3m, del 8% en longitudes menores a 6m y del 6% para el resto de casos. ¿Cuál es la normativa de una rampa para minusválidos?

Pautas para la mejora de la accesibilidad en el interior de la vivienda (I) Tu Edificio En Forma

Normativa de Rampas para Minusvalidos 2024

Necesito instalar una rampa para discapacitados. ¿Se puede negar la comunidad de propietarios

ENTRADA AL EDIFICIO DE VIVIENDAS ACCESIBLE (que no "vivienda para minusválidos") ACCESIBILIDAD

Rampa para minusválidos Oro y Piedra

Rampas para Discapacitados en Madrid Carpintería Metálica Madrid

Infografía y Delineación 3D Rampa de minusválidos a edificio

Qué tener en cuenta en las rampas de acceso en edificios Moovintec Movilidad

Acceso en rampa para minusválidos al edificio para minusválidos 2023

Rampa automática para entrada de edifícios Stananh

barquitec Rampa accesible para edificio de viviendas.

ACCESIBILIDAD GLOBAL RAMPAS ACCESIBLES PARA PERSONAS CON DISCAPACIDAD

¿Es obligatoria la instalación de rampas en edificios? Estudio 011

ACCESIBILIDAD GLOBAL ¿TARJETA DE ESTACIONAMIENTO PARA PERSONAS CON DISCAPACIDAD AL VEHÍCULO O A

Rampa para minusválidos en silla de ruedas en la entrada del edificio Fotografía de stock Alamy

Foto Rampa Acceso Minusvalidos de Predaart 143634 Habitissimo

Rampa de acceso a edificios Portal Prensa Salud

Foto Rampa para Minusvalidos en Entrada Al Edificio de Restaure 2020 Rehabilitaciones Sl

¿Cómo eliminar barreras arquitectónicas en un edificio? Grupo Excelsior

Infografía y Delineación 3D Rampa de minusválidos a edificio
Real Decreto Legislativo 7/2015, de 30 de octubre, por el que se aprueba el texto refundido de la Ley de Suelo y Rehabilitación Urbana. Documento Básico SUA. Seguridad de utilización y accesibilidad. Documento Básico SI. Seguridad en caso de incendio. Reglas de seguridad para la construcción e instalación de ascensores.. Se debe tener en cuenta la anchura de la rampa, la cual debe ser suficiente para permitir el paso de sillas de ruedas y otros dispositivos de movilidad. Lo recomendado es una anchura mínima de 1.20 metros.